Где будет жить Наиль Магдеев
Руководитель исполкома города Набережные Челны был представлен нам в сентябре прошлого года, а уже зимой рассказал челнинцам, что будет жить в жилом комплексе «Солнечный парк» в 46 комплексе. Информацию о высокопоставленном жильце подтвердил в одном из интервью и руководитель компании-застройщика.
«Челны ЛТД» решила посмотреть, как выглядит новое жилье топ-менеджера города.
Жилой комплекс «Солнечный парк» состоит из нескольких зданий: 2 восьми- и 2 двенадцатиэтажек и расположился между проспектом Чулман и улицей Усманова. У домов есть подземный паркинг, видеонаблюдение, огороженная охраняемая территория, консьерж-служба. На сайте проекта можно увидеть интерьеры холлов с мраморными полами и витражными стеклами.
В блоке В всего 49 квартир: 7 двухкомнатных, 14 трехкомнатных, 28 четырехкомнатных.
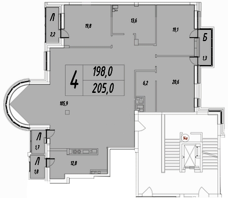
Площадь самой маленькой квартиры статусного дома – 100, самой большой - 233 квадратных метра. Нужно сказать, что только гостиная в этих просторных апартаментах квартирах составляет больше 100 метров.
Квартиры продаются с черновой отделкой, в них установлены только деревянные окна с двухкамерным стеклопакетом, металлическая входная дверь, счетчики. Возить жильцов будет германский лифт. К жилому блоку «прилагаются» 52 гаража-стоянки.

Так как в декларации Наиля Магдеева фигурировала новая квартира в 198 квадратных метров, мы легко отыскали ее в роскошной новостройке. Она располагается на одном из верхних этажей, окнами на проспект Чулман. У квартиры челнинского мэра гостиная в 105 квадратов с эркером, 3 лоджии и 1 балкон и прекрасный вид на парк Прибрежный. По разным оценкам, стоить эта квартира может от 11 до 13,8 миллионов. Большая часть квартир элитного блока уже выкуплена. В подъезде, где будет жить руководитель горисполкома, осталось всего 6 квартир.


